Canada House, Manchester City Centre

Henry Kaye Family Trust

1996-1999

By the middle of the 19th century the city centre was starting to become less industrial. This was largely due to the huge increase and demand for packing and shipping warehouses, which harnessed the railway and canal networks.

H.S. Booth & Company constructed a number of large modern packing warehouses on Oxford Street and Chepstow Street, culminating in the construction of their last building, Block D, now known as Canada House which is now Grade 2 listed.

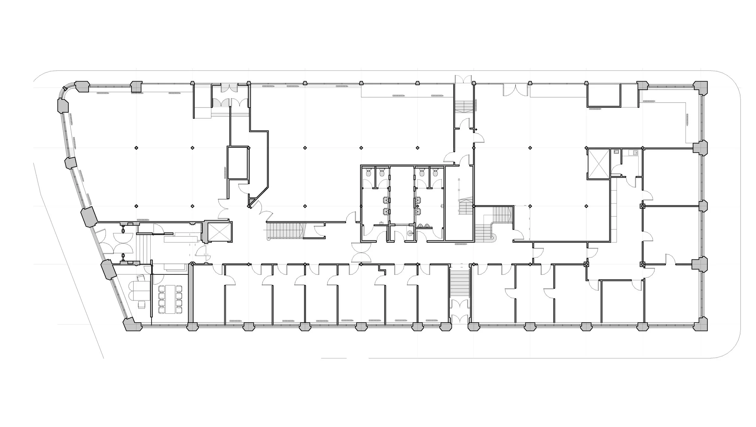
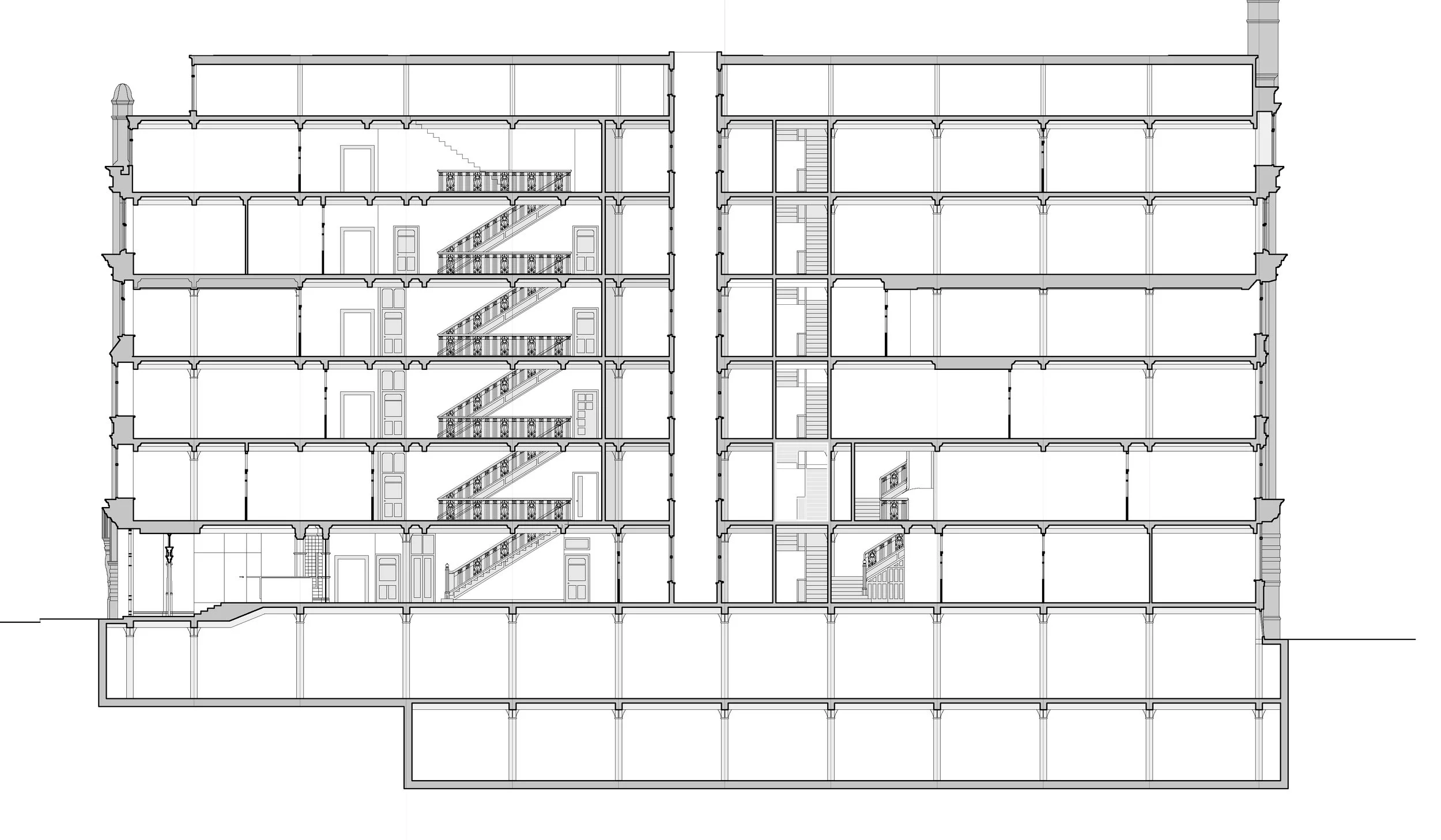
Canada House was constructed at the end of the Victorian era and remains one of the most important cotton warehouse buildings in Manchester. As it was to be occupied by Booths and by others, this saw the design of the building incorporate a main entrance for H. S. Booth on Chepstow Street through a highly elaborate Art Nouveau wrought iron gate and high-quality hardwood glazed doors and surround. A smaller, less elaborate entrance was positioned on the Chepstow Street South elevation, where plain double panelled doors led into a similarly ornate glazed tile entrance vestibule, stairs and corridor.

Our brief was to create modern offices with the existing and relatively intact interior.

All the original fixtures and fittings were retained and the building was restored to its former glory. As a contrast, the new elements of the design, the entrance and the internal lighting were uncompromisingly modern insertions.