Chorlton Park, Chorlton, Manchester

Irwell Valley Housing Association and Urban Splash

1999-2002

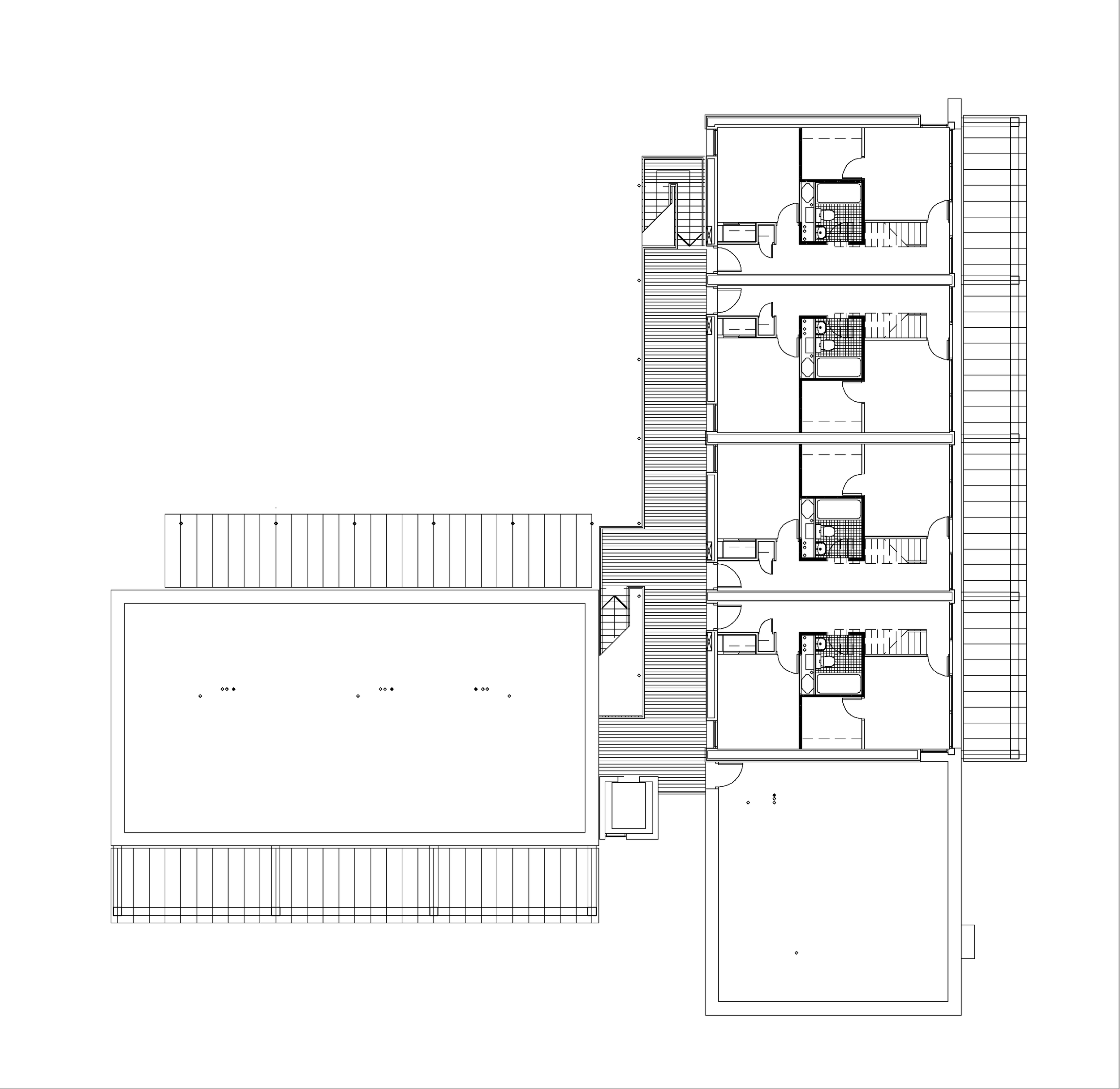
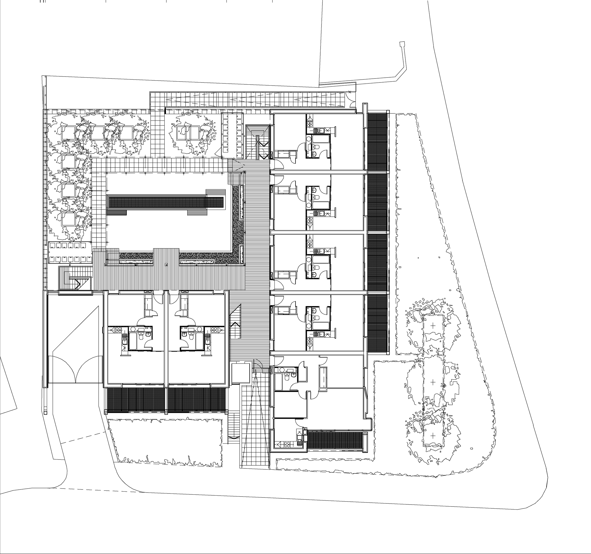
The limited, invited competition by Irwell Valley Housing Association, originally required 20 new homes to be built on the site of a disused and badly contaminated former petrol filling station. The design brief called for space, light, warmth, flexibility, integration of external environment and the maximisation of natural heat, ventilation and light. Planners recognised that the immediate area had little to offer in terms of design direction and were keen to see a distinctive and landmark design on the site. Orientation was good and the east side of the site overlooked Chorlton Park across the relatively busy Barlow Moor Road, whilst the south side faced onto a quiet side road. Adjoining buildings were generally two-storey semi-detached houses and small shops. This entry won the competition. Tom Bloxham of Urban Splash was one of the assessors and proposed a joint venture development of an enlarged development, totalling 27 units, which involved forming an underground car park below and adding four duplex apartments on top of the original proposal.

The majority of the development remained at the original three storeys; the five storey element was at the then height limit for timber framed construction. Access to flats was via generous external decks. Although there was limited communal space, the roof garden, circulation areas, and single entrance encouraged communal activity. The plan and section layout was devised to provide for both community and privacy.

More space was given to the living areas by reducing circulation. Natural light was maximised by the orientation of all the living rooms; bedrooms on the quiet side and great views from balconies. High levels of insulation (U value = 0.11) and whole house ventilation ensured very low heating costs (estimated to be under £100 per annum at the time of completion). Privacy and security were enhanced by a raised ground floor; and car parking was safely controlled and screened by planting.

Expensive energy generators, photovoltaics, solar panels, or windmills were rejected in favour of high insulation and energy conservation. Louvered screens provided shade and privacy. The balcony was an extension of the living space overlooking the park and used massive green-oak posts and beams from wind-damaged French forests. Construction in timber platform frame is quick, efficient and cost-effective, using renewable materials. The building has low embodied energy, was highly insulated, quiet and warm. The external materials are easily maintained and robust. All units were completely accessible. The development was completely sold out prior to completion.