Deansgate Quay, Knott Mill, Manchester City Centre

Crosby Homes

1997-2000

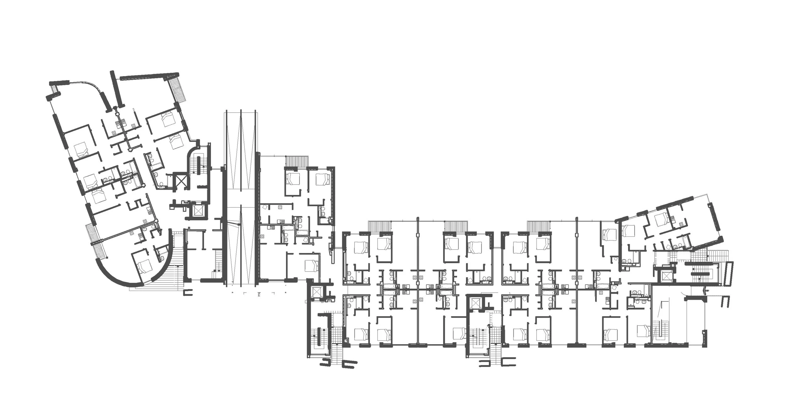
Crosby Homes (North West) Ltd. commissioned a mixed use development consisting of 102 residential apartments and public access uses at part ground and lower ground floor level on a site site bounded by a major arterial road to the west and a railway viaduct to the north. The site is split by the River Medlock which is stopped off by a weir and acts as a feeder to the head of the Bridgewater Canal, passing under the new building.

The approach has been to re-introduce a ‘back of pavement’ edge to Old Deansgate, to reinstate the local urban fabric and to create a sense of enclosure and containment to the development. The surrounding environment is strongly urban-industrial in character and scale, although the fabric is weakened in places by the number of derelict sites, such as this one.

The proposed scheme consists of four blocks varying in height from five to seven storeys and is based on a four-apartment cluster around the vertical circulation core. The four blocks are arranged in a linear fashion, echoing the warehouse which occupied the site in previous times. Each of the blocks is separated by glazed screens which respond to the common area, giving an identity to each block and reducing the scale of the whole. Every block has its own front door and entrance is gained by crossing a series of timber and steel bridges spanning a kind of moat created by easing the building away from an existing retaining wall to Old Deansgate.

The building straddles the canal using a series of storey height steel trusses which again echo the previous warehouse. The water can be seen flowing under the building, from the Medlock weir and into the canal basin.

The building is steel framed and the walls are of brick with punched windows reflecting the local industrial architecture. Steel and glass bay windows with steel and timber balconies are cantilevered out to provide full height glazing to the living rooms, giving a light and airy feel to the apartments. The layering of materials continues with the introduction of stainless steel panels cladding the set-back upper storeys, used as a light weight counterpoint to the heavy masonry base.