East Downs Road, Bowdon, Altrincham

Private Client

2005-2009

A local family seeking a unique and truly original home with high levels of environmental sustainability commissioned the design of a private house. From the outset, the client’s requirements could only realistically culminate in a design which was contemporary and forward thinking.

The site, on East Downs Road, was occupied by a “bland” 1960’s house, offered an exciting opportunity for imaginative high-quality design and an opportunity to enhance the immediate area. Being close to the top of the hill in Bowdon, the site had the potential for magnificent views over the Cheshire Plain; one of the reasons why 18th and 19th Century families chose to build there. East Downs Road is mews-like in character; that is to say, it was narrow, with high walls to the back of pavement, some buildings set to back of the pavement and others set well back in their own grounds. There was a rich mix of building types, building materials and age of structure – ranging from Georgian to present day. Materials included buff sandstone, Cheshire brick, white painted stucco and the Altrincham/Bowdon pressed buff brick, much favoured in the 19th Century.

The site came with numerous constraints. It was within a Conservation Area and was particularly sensitive due to its proximity to a large Grade 2 listed building immediately to the west. Furthermore, the site once formed part of the curtilage of the main house, which had been split into two dwellings but whose primary elevation still overlooks the subject plot.

The architectural response adopted a ‘mews’ relationship, characteristic of the street and re-instated the high back of the pavement wall which existed prior to the 1960’s development and was still in existence on the neighbouring properties.

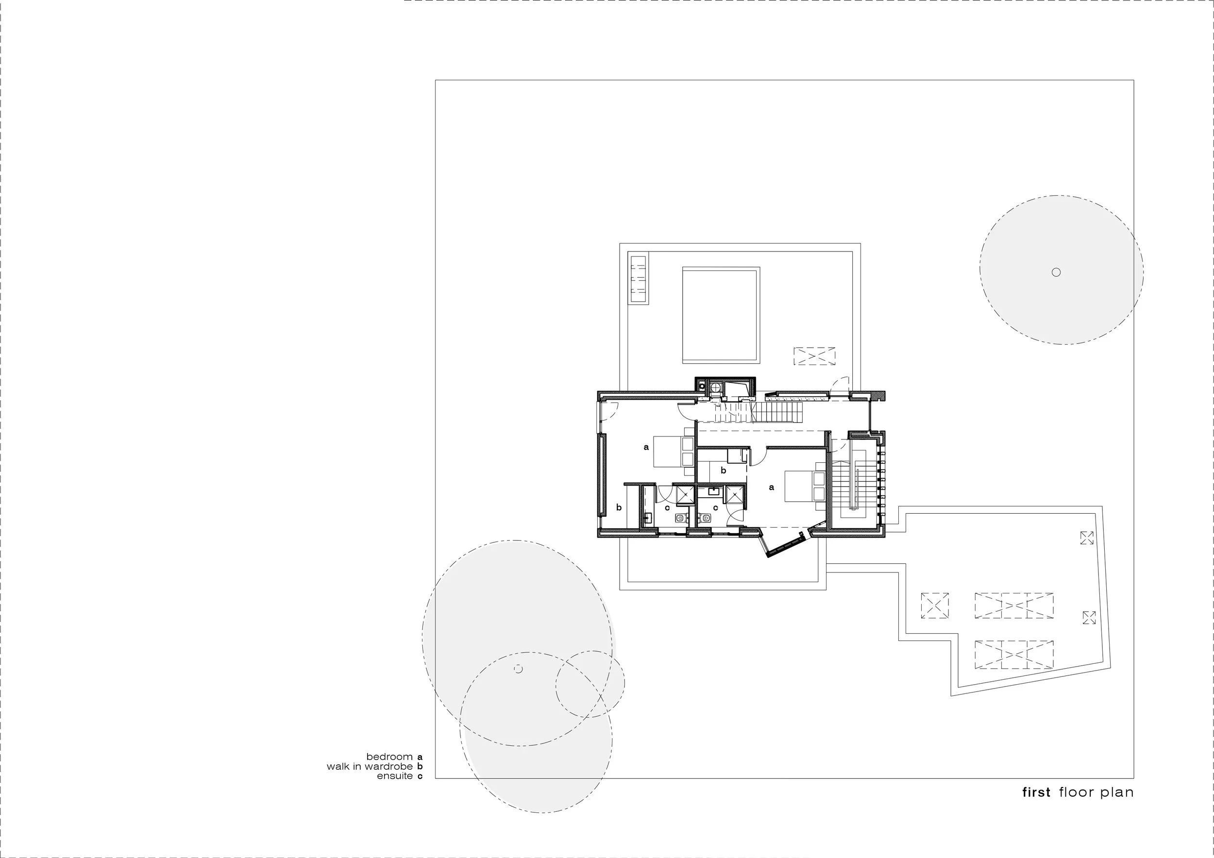
Behind the wall, the tallest element was placed equidistant from the adjoining houses and was comparable in height with them. The building nestled into the considerable southward-facing slope and presented three storeys from the roadside and four storeys from the garden side. The footprint was equivalent to the smaller Victorian houses to the east of the site; however, it was partially masked by the high boundary wall to the perimeter of the site.

The design used a palette of buff brick with flush lime/sand mortar and render, which took its lead from the listed properties in the immediate proximity which used stucco and light buff brick.

Environmental features such as sedum roofs and underground greywater stores, for irrigation and supply to a natural pool at the bottom of the garden, were complemented by the intrinsic design of aspects such as large areas of south-facing glazing with brise soleil to achieve maximum benefit from passive solar gain.

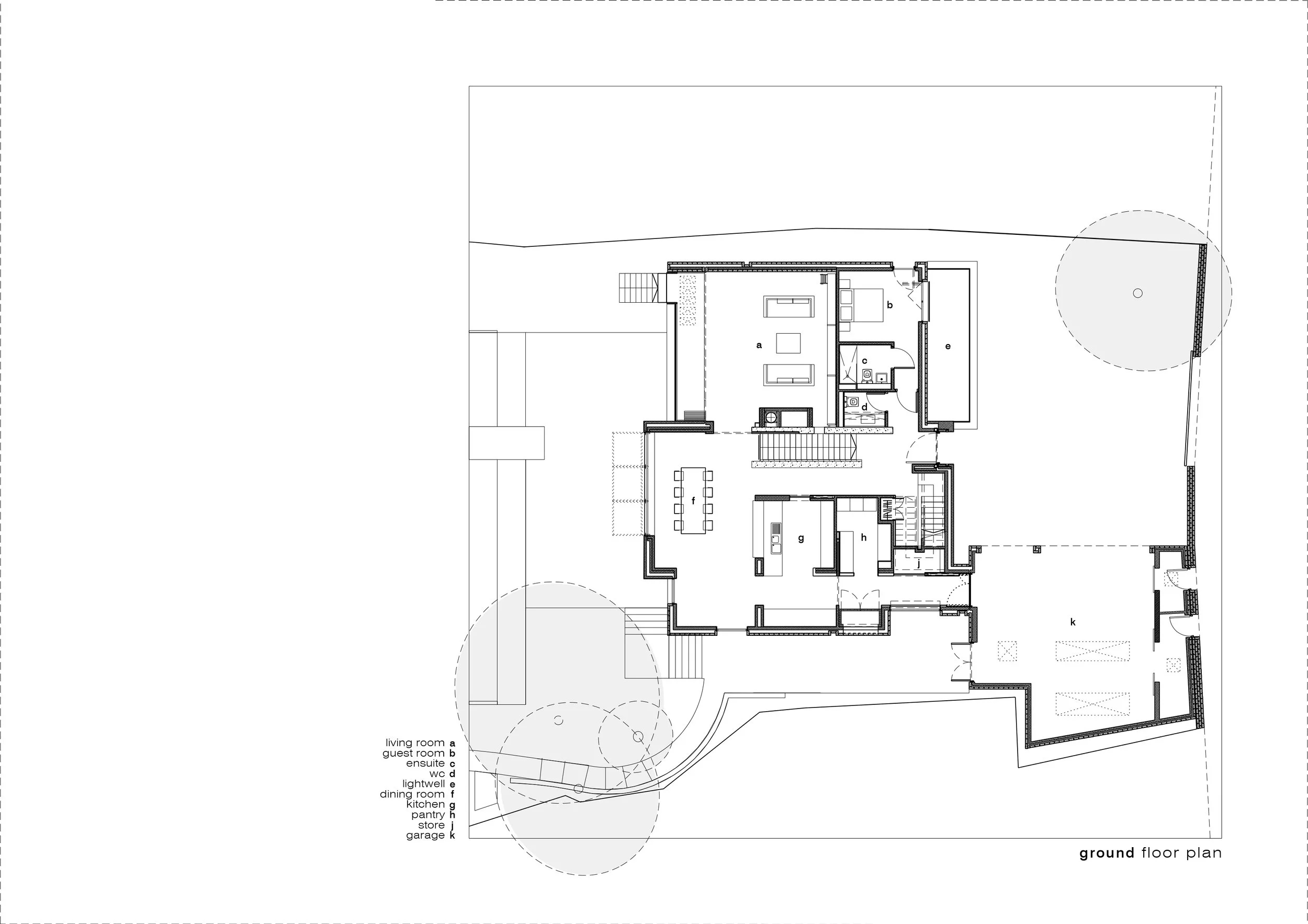
From the enclosed driveway a portcullis entrance led to the main space of the house, the open-plan living room and kitchen which has a glazed elevation onto the large mature gardens. There are four bedrooms in all, with the master suite on the second floor serviced by a laundry chute directly to the utility room in the basement.

The Application for Planning Permission was refused by the local Planning Authority and the client chose to Appeal the decision. The local authority having refused a first application in October 2005, again refused permission on a second application whose revised proposals were to obviate all reasons for refusal relating to overlooking and two mature trees. The only outstanding reasons related to the local UDP, pertaining to preserving or enhancing the character or appearance of the Conservation area and preserving the setting of the neighbouring listed building. The Appeal was successful.

The Planning Inspectorate Report stated that the design directly reflects modern living conditions and requirements using contemporary design forms and materials just as in their own way, and in their own time, did the Victorian houses in the surrounding area. In intrinsic design terms, it clearly meets the high standards sought in both national guidance and the Council’s SPG.”

Following the appeal, the Inspector’s Report stated: “The design as a whole is striking but also well-proportioned and sensitively composed. The fact that the genesis of this particular Conservation Area took place over a limited length of time should not stymie change within it and the appeal proposal would replace a house of poor design quality with a high-quality contribution to the historic evolution of the local area.”