Ellesmere Street, Manchester City Centre

Darren Barlow

2001-2006

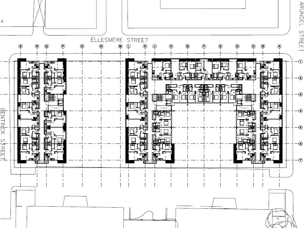
The development comprised of 216 apartments over ground floor retail within 2 blocks, separated by a publicly accessible piazza. The 2 blocks manifested themselves as a c-shape block surrounding a private courtyard and a rectilinear block enclosing a central lightwell.

The site was a dominant location within a regenerated area on the south west gateway of Manchester city centre, adjacent award award-winning Urban Splash developments. A Grade II* Listed Church recently converted to apartments sits to the east of the site. The scale and language of the recently completed developments and the material of the church acted as a catalyst for the concept of our scheme. Rigid, rectilinear forms follow the back of the pavement line, reflecting the old industrial factories and warehouses, typical to the area. We were conscious not to copy the industrial language of the sites’ past but to reinterpret a modular and cellular expression in a fluid and contemporary manner.

The façade comprised of a standard module of stone-clad, pre-fabricated concrete units, dispersed between full-height glass windows and sliding doors. These sit within a cellular composition of balconies and privacy screens, built of acid-etched pre-cast concrete units. The balcony structure acts as a latticework, transferring its load to the floor slabs at the interfaces with the privacy screens.

In order to achieve a horizontal expression on the facade and a true reflection of the displacement of accommodation within the building, the apartments are staggered above one another floor to floor. Double-height spaces within duplex apartments are located at each corner of the building, aiming to dissolve the corners and act as a major visual expression of the scheme.