Grado Restaurant, Manchester City Centre

Heathcotes Restaurants Limited

2006-2008

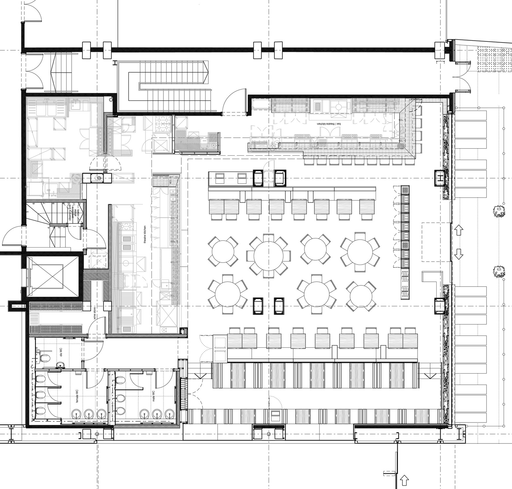
The practice was appointed by Heathcotes Restaurants to design a high end Spanish restaurant in the heart of Manchester’s city centre, the first of its kind in the Heathcotes’ portfolio. The concept from the outset was to design a bright, contemporary and welcoming space where guests could enjoy anything from a glass of wine to a four-course meal. The mix of banquette seating, booths and centre-floor tables sit comfortably against the contemporary design which combines a rich pallet of timbers, natural stones and plush leathers. Lighting is supplied by large ivory pendants which provide an intimate atmosphere against a backdrop of American Walnut above the kitchen and bar areas. The front-of-house “theatre” kitchen allows diners to experience the excitement of the kitchen which sits adjacent to an informal bar area where pre-dinner drinks and tapas are served. An efficient use of space (335m²) means 120 covers can be comfortably accommodated alongside the kitchens, bar, storage rooms, toilets, staff areas and feature fridge display. The latter of which dominates the raised dining area overlooking the recently completed Piccadilly Mall where a sympathetic use of materials gives the two spaces a visual homogeny. A flagship of the Heathcotes’ brand, Grado set a new precedent in city centre dining.