Hacienda Apartments, Manchester City Centre

Crosby Homes

2000-2004

Eventually closed in June 1997, the Haçienda lived on in memory only and stayed empty until Crosby Homes acquired the site in 2000. Acquisition of the buildings directly adjacent created a site over 100 metres long by 21 metres wide bordered by the Rochdale Canal to the rear and a railway viaduct to the front.

The site is a landmark on a major arterial traffic route from the south of the city centre, at the intersection of Whitworth Street West and Albion Street. Continuing the strong, urban scale of buildings along Whitworth Street, the Haçienda apartments form a ‘book end’ to the western part of Whitworth Street West, whilst respecting the scale of the existing buildings at 6 storeys. The building stepped up to form a landmark tower at the corner.

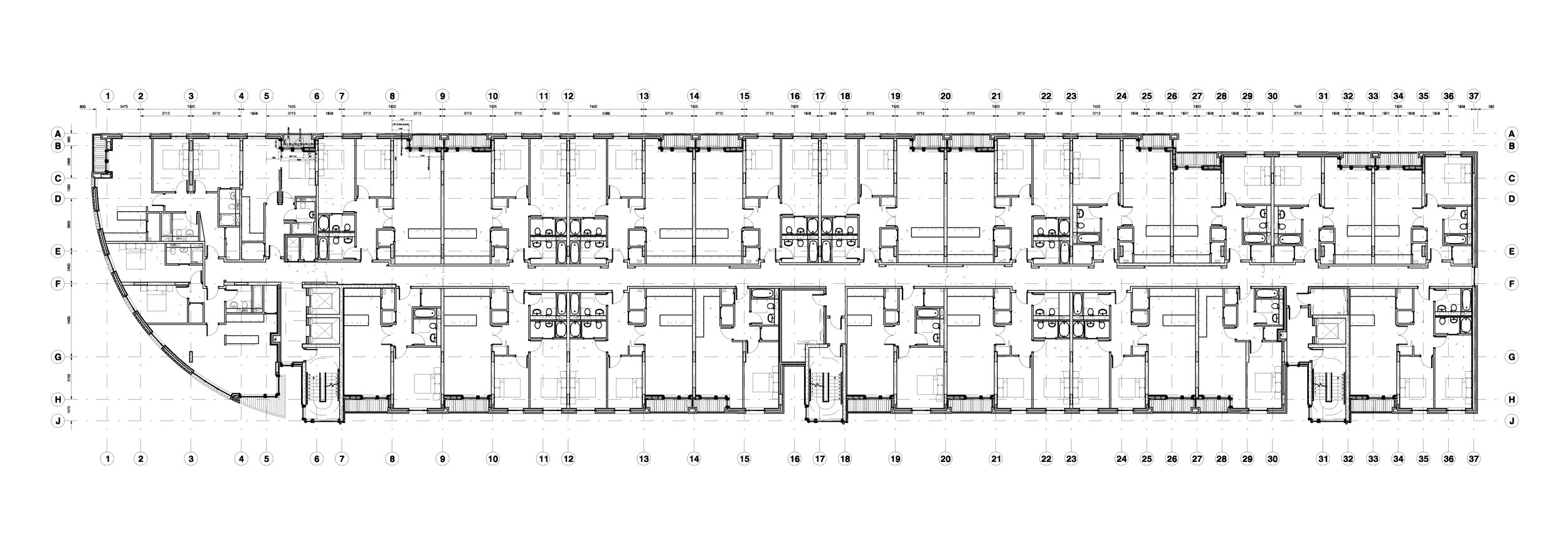
The brief called for the design of a multi-storey residential apartment building containing 161 high quality apartments with basement and lower ground floor car parking. The narrowness in depth and the linear nature of the site informed a plan that disperses the accommodation either side of a central corridor. Due to the length of the corridor, the plan is broken into 3 parts by the vertical circulation cores. These are expressed on the front elevation as punctuations in the urban wall.

Manchester, and canal-side buildings in particular, express heavy masonry skins with punched holes in vertical proportions. We continued this theme of the urban wall as a brickwork skin, punctuated by openings of various vertical proportions that reveal a rainscreen layer behind. This forms a comfort zone that is utilised as balconies to the standard studio and one and two-bed apartments. The inner layer is revealed above the brick base as rooftop pavilions to the upper levels creating terraces for the larger 2-bed apartments and duplexes. The enveloping brick skin wraps the corner of Albion Street, breaking down gradually at the ninth floor to reveal the orthogonal, layered box above. A series of folded planes cap the various 2-bed penthouse apartments and provide individual expressions and identities to the spaces within, addressing the rooftops of the city as ‘peaked caps’ that are orientated to capture the panoramic views of the city and the Pennines beyond.