Manchester Reform Synagogue, Residential Development, Manchester City Centre

Modus

2007-2008

The site of is situated within the Deansgate/Peter Street Conservation Area within the city centre of Manchester. The Conservation Area predominantly consisted of commercial buildings but also contained a significant number of places of assembly such as a church, theatre, concert hall, opera house, synagogue and Masonic temple.

The buildings are generally constructed from a wide range of high-quality materials such as stone, red-orange brick, terracotta and faience. These heavy, solid materials are fenestrated by predominantly vertically proportioned openings with windows set back within deep reveals. Generally, buildings in the area display the Manchester characteristic of a tri-partite subdivision of the elevations, consisting of an over-large ground floor, a less highly modelled middle section and a varied top level.

The site itself contains a five-storey red brick synagogue built to the back of pavement on Jacksons Row and with external ground floor car parking to the side and rear. The synagogue would remain in operation until planning approval was granted for the redevelopment of the site.

The proposal involved the demolition of the existing synagogue and the construction of a new mixed-use development incorporating a new synagogue (class D1) with basement car parking and apartments (class C3) above.

The existing synagogue building was over 50 years old and required ongoing maintenance and repair. The council was keen to retain the synagogue within the current location since it contributed to the character of the conservation area. The possibility of a joint venture with a developer to share the site for the benefit of both was considered to be the better option. The council was very supportive of a joint venture to provide a mixed-use development incorporating city centre residential use since it allowed the retention of the synagogue on Jackson’s Row.

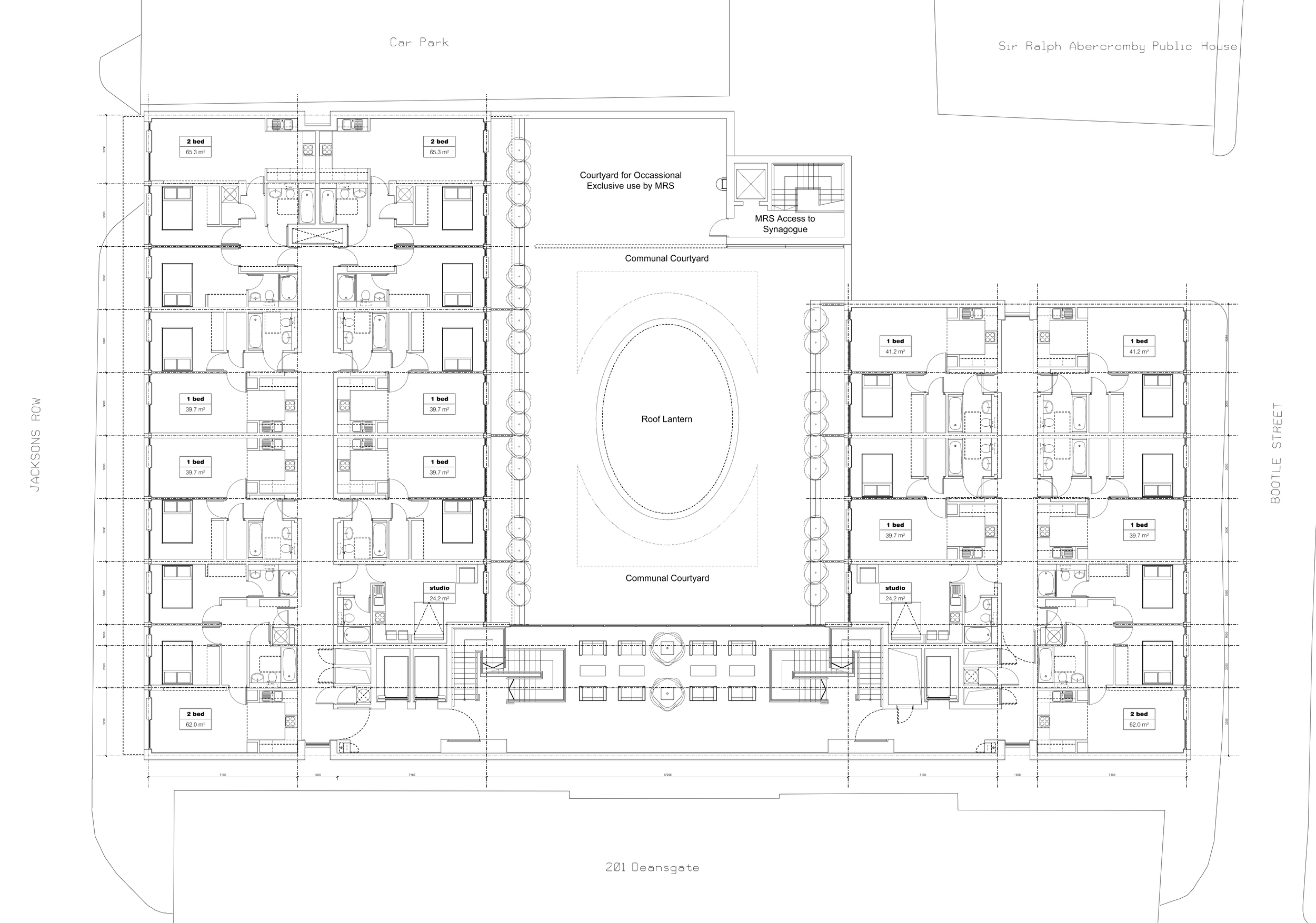
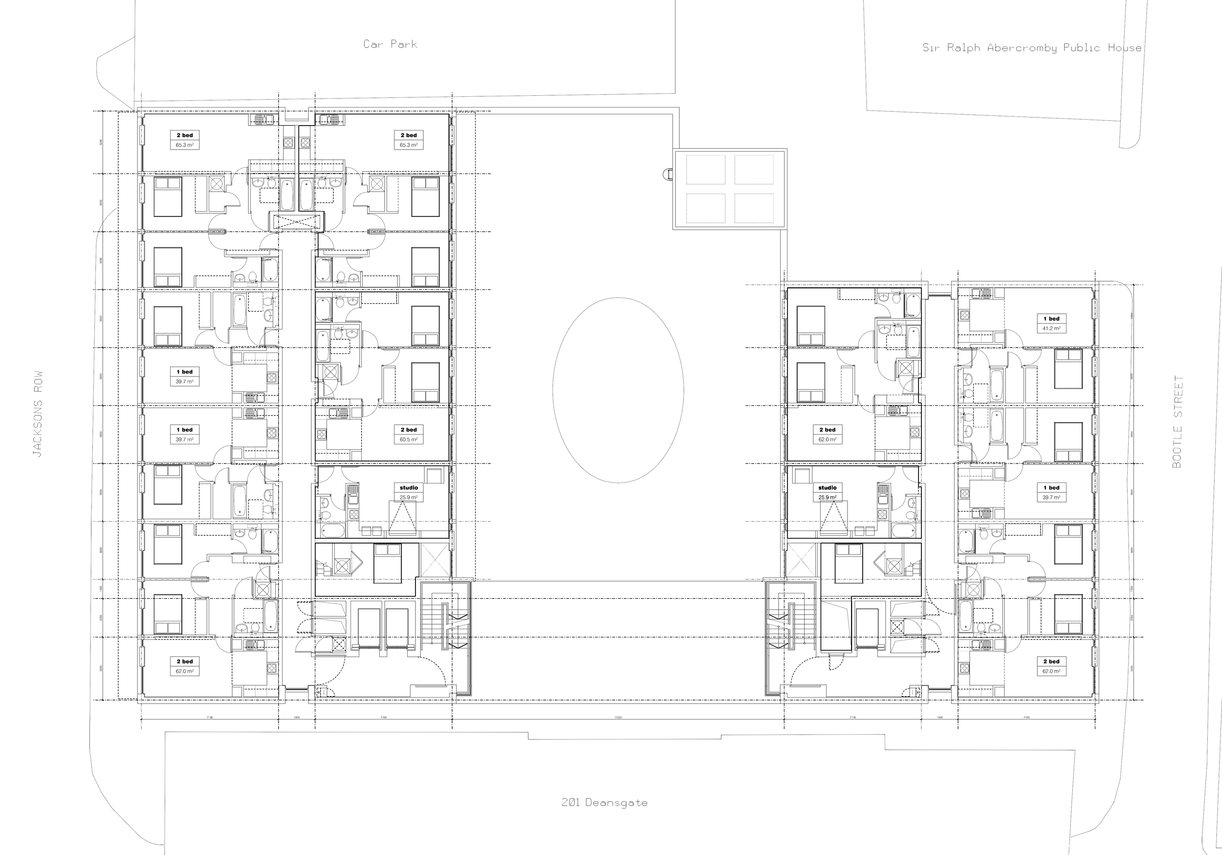
The proposals would have provided the synagogue with a new state of the art building incorporating a large sanctuary with tiered seating, a large banqueting and functions hall, internet café and lounge area, study and presentation rooms, offices, open courtyard and secure basement car parking which is to be shared with the residential development.

Above the synagogue building the apartments were organised into 2 wings of accommodation arranged around a central open courtyard allowing daylight penetration to the sanctuary of the synagogue below. This arrangement also locates a tall urban block of 28 storeys to the back of pavement on Jackson’s Row and lower block on Bootle Street of 5 additional storeys to further enhance the street wall definition. The development provided a Synagogue capable of accommodating 500 people and 203 apartments of varying sizes.