Office and Residential Development, Gorsestacks, Chester

Barlows plc

2003-2010

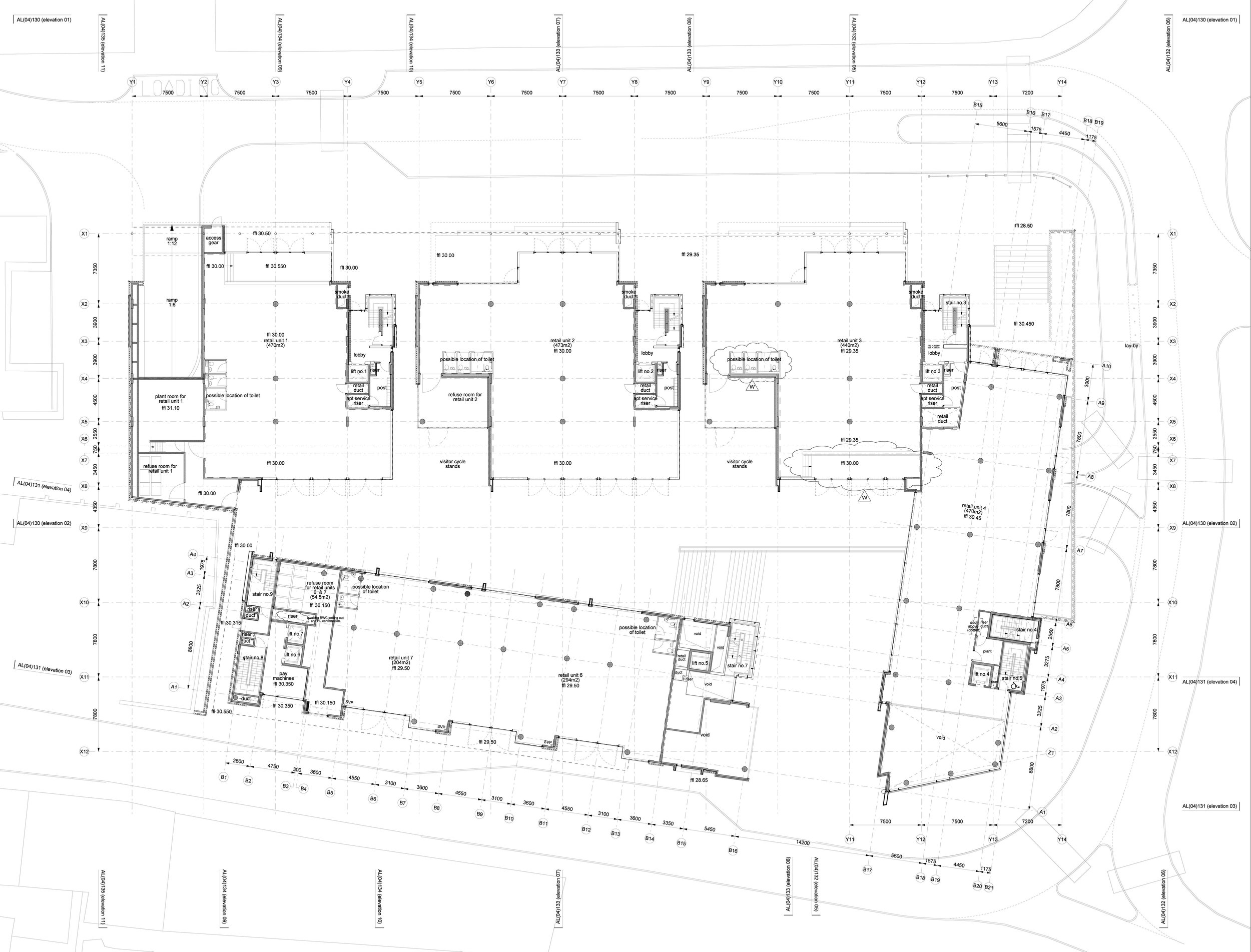
Within the Gorsestacks Masterplan in Chester city centre, the site was at a location north of the outer ramparts of the Roman wall that surrounds the original city precinct. It is surrounded by George Street to the south, Delamere Street and St Oswald’s Way to the north, Oulton Place to the east and the rear of the properties facing Upper Northgate Street to the west. The site was used as the National Express bus terminus until early 2004. The bus shelter was a two-storey brick building and there were also two other buildings that existed on the site; a carpet factory facing Delamere Street and a taxi rank facing George Street. The brief asked for circa 235 no. apartments, retail/commercial units, private car parking for 150 cars and a subterranean public car park for 360 cars.

The design proposal involved the unification of three separate sites, which are identified in the Gorse Stacks Masterplan as being sites 1, 2 and 3. The main urban design objective of the proposed development was intended to ‘heal’ the damage caused by the 1960’s interventions. To achieve this:

All buildings needed to follow the established building line to give definition to and reinforce the streetscape. The buildings were configured to create inner courtyards that are accessed by ginnels or chares, which are typical features within Chester. All buildings were to be located close to adjoining buildings to give continuity to the streetscape. Provide a coherent strategy for the development site that is integrated within a greater vision for Gorse Stacks.

The design reinstated the urban grain of the period between 1860-1960 and, in so doing, created a proposal that united Gorse Stacks with adjoining neighbourhoods.

A design proposal emerged based on three separate buildings; all of which were residential apartments over retail / commercial units. A mix of uses was integrated into the design to provide a coherent development that would encourage different people to access and use the buildings at different times of the day. The proposed uses included restaurants, bars, offices and shops which have been concentrated around the courtyard to site 1 to ensure a lively and active public realm. Similarly, site 2 contained retail units at ground floor level in an effort to create a mixed-use development with an active street frontage that will positively contribute to the streetscape.

The underlining principle to the elevations was the notion of a number of tall, vertically proportioned buildings on small building plots. The bases were to be constructed of brick to give solidity to each unit, albeit punctured by large glazed retail units with protective steel canopies. Above this, a glazed box surrounded by a rendered fin wall and a wide rendered wall panel on which are a series of black timber louvres that alluded to wattle and daub facades. This composition was finished with an overhanging mono-pitched roof constructed from black natural metal, imitating the black-painted eaves of Chester’s historic buildings. Each of these repetitious building units were visually separated from the neighbouring unit with a vertical fin wall constructed of black natural metal. This allowed each unit to be read as a separate building from its immediate neighbour.