Office for Peel Media Limited, MediaCityUK, Salford Quays

Peel Media Limited

2020

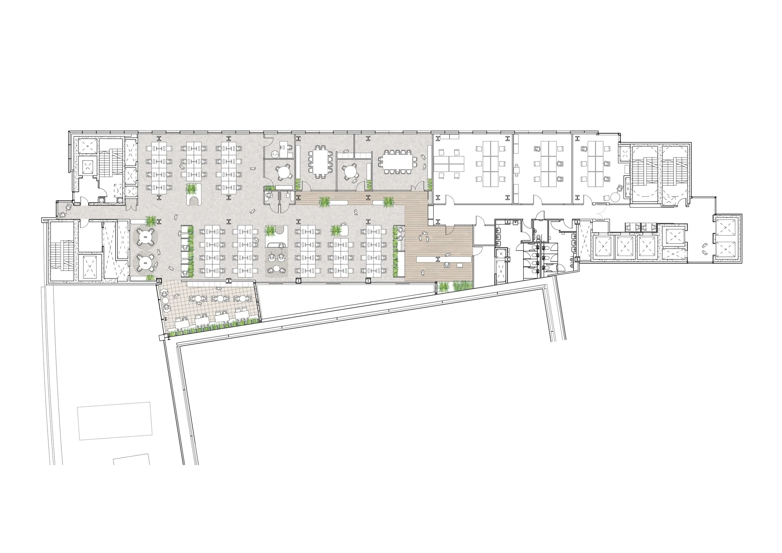
We were asked by Peel Media Limited to explore the adaption and expansion of their existing office spaces which we designed as part of the Arrive proposition. The requirement was to provide a space that could accommodate three separate business units; Peel Media Limited, Northstone and Peel Land & Communities.

Concept: We spend approximately a third of our lives working, roughly equating to 90,000 hours; bearing in mind this could increase with the state pension age to rising to 75 over the next 16 years

Designing for a diversity of working spaces is key to a productive office. This allows people to choose the most appropriate space for the task at hand – whether quiet concentration or creative interaction.

However, it is not only working spaces, but also social or breakout spaces that have an impact on productivity. Places for staff to congregate socially and relax, and not to disturb or be disturbed directly by the working environment are vitally important. They help to drive a cross-pollination of ideas, employee engagement and foster a sense of community, which can serve to strengthen a company’s culture, or its ‘organisational ecology’.

The introduction of warmer materials, the ‘choreography’ of the spaces and installations, clear respect for the qualities of the existing structure, and the exciting co-ordination of graphics and furniture design, will lead towards an integrated architecture of genuine quality. We believe in a brand-led approach that will enable the businesses to share spaces but each retain their identifiable brand. These spaces only really come to life when there’s someone enjoying them.

We proposed the introduction of environmental features: natural features such as plants, earthy colours, natural light and natural materials that are aesthetically pleasing. There is good evidence that shows the benefits to occupants are particularly strong if the views feature nature. This is an example of biophilic design approach that can improve health and well being.

We addressed issues of light and space: being intentional with light in all its forms – warm, cool, shaped, filtered – and varying depending on a space’s purpose.

Our approach was to plan the space to best suit the occupiers, the accommodation schedule and the design aspiration rather adapt what existed; we proposed two optional strategic arrangements.