Radisson Edwardian Free Trade Hall Hotel, Manchester City Centre

La Sande

1998-2004

Bomb damage in the Second World War left two retained facades from the 1860’s building designed by Edward Walters. The Italianate palazzo references in the Peter Street facade are skin deep. What lay behind is not the series of grand spaces that one might expect, but awkward wedge shaped slithers of space surrounding an auditorium, shoehorned onto the site in the 1950’s redevelopment by Leonard Howitt. It is acknowledged that such expressions of functionality were not part of Walter’s architectural ethos; however, this does not preclude the opportunity to enhance the architectural expression for the new use of the facades.

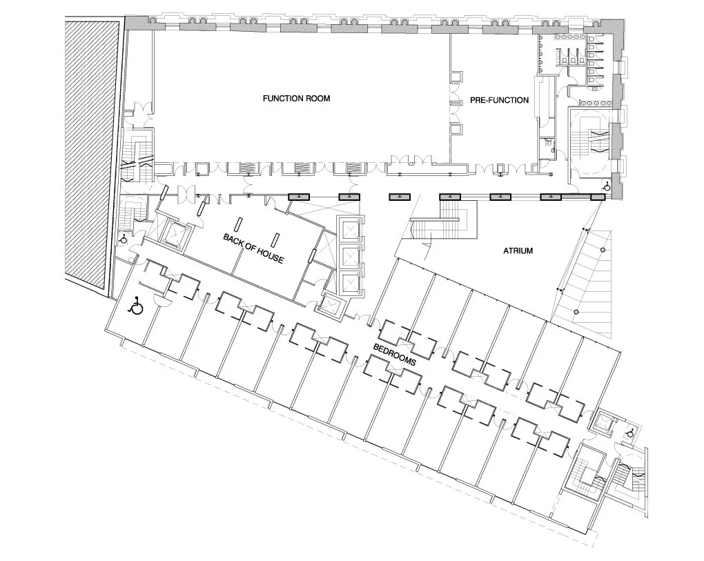
The design proposals recognise that the hotel splits clearly into two very different types of primary space. This led to a strategic use pattern that put the large span public function spaces in a newly created 18m deep “palazzo” which uses the retained 1860’s facades as its principle elevations. Secondly, the hotel bedrooms which have entirely different constructional requirements were placed in a clearly expressed contemporary structure that adopted the geometry of Windmill Street. Back-of-house accommodation occupied the less premium spaces.

The symbolism, spirit and social history of the building and site, which are of enormous importance, were symbolised by retaining the much-loved Victorian façade. The intention was that the vestigial “palazzo” Peter Street block would, in effect, be a memorial to the importance of the site and also contain the retained artefacts from the old building. Thus, the two parts of the building reflected and expressed their functions, in the epitome of present-day architectural credo, and a fitting balance was created between the old and the new.

The site geometries generated by the intersection of Manchester’s two city grids are expressed in the juxtaposition of the highly embellished “palazzo” with the taller unadorned “contemporary” block. The triangular fully glazed atrium space between the two blocks made for a dramatic entrance foyer. Entered from both Southmill Street and Peter Street the atrium combined the functional and symbolic importance of the two differing approaches. The space is an architectural statement in its own right by linking the two principle blocks into a cohesive whole allowing appreciation of the important axial geometries of the blocks.

The ground floor of the “palazzo” accommodates a double-storey high grand reception hall, restaurant and bar. The first floor accommodated an equally grand scale function room. The upper two floors have syndicate suites with access to a sheltered winter garden behind the retained Peter Street façade. The contemporary block to Windmill Street housed the majority of the 261 bedrooms and suites. The ground floor of this block housed a restaurant/bar. Rooftop plant was masked by an open-topped glazed enclosure. The basement accommodated a fitness spa and the main back-of-house facilities.

An important characteristic of Manchester’s architecture is the tri-partite facade composition of base, middle and top. This was respected in the design of the contemporary block, having a clear two-storey base, a regular homogeneous body and a cap formed by three storeys of lightweight glazed construction. The contemporary block forming the backdrop to the palazzo is a simply detailed and highly glazed to complement rather than completing with the decorative Victorian detailing. The south-facing and flank elevations are clad in terracotta rainscreen, with Portland stone expressing the three vertical cores.

The post war 1950’s redevelopment responded to the “front & rear” hierarchy of its site context at that time. The blind Windmill Street façade faced onto the railway termini, warehouses & marshalling yards. The new proposals provided an appropriate and balanced solution that successfully addressed the scale and massing of the grand buildings & public spaces created by the Great Northern Initiative which, with its civic character, have arguably become more prominent than the Peter Street frontage. The hotel proposal is congruous with the areas newly civic status and the aspirations of modern-day Manchester.