Rappax Road, Hale, Altrincham

Private Client

2004-2006

The client’s brief was to provide a high-quality contemporary dwelling that would take advantage of the site’s topography, with its gently falling gradient away from the road which exposes stunning views across the surrounding landscape.

The site located in the Conservation Area of Hale, Altrincham, was originally occupied by a 1970’s single storey dwelling, overgrown with its associated landscaping that neither utilised the setting and its surrounding landscape, nor provided the client with their required accommodation.

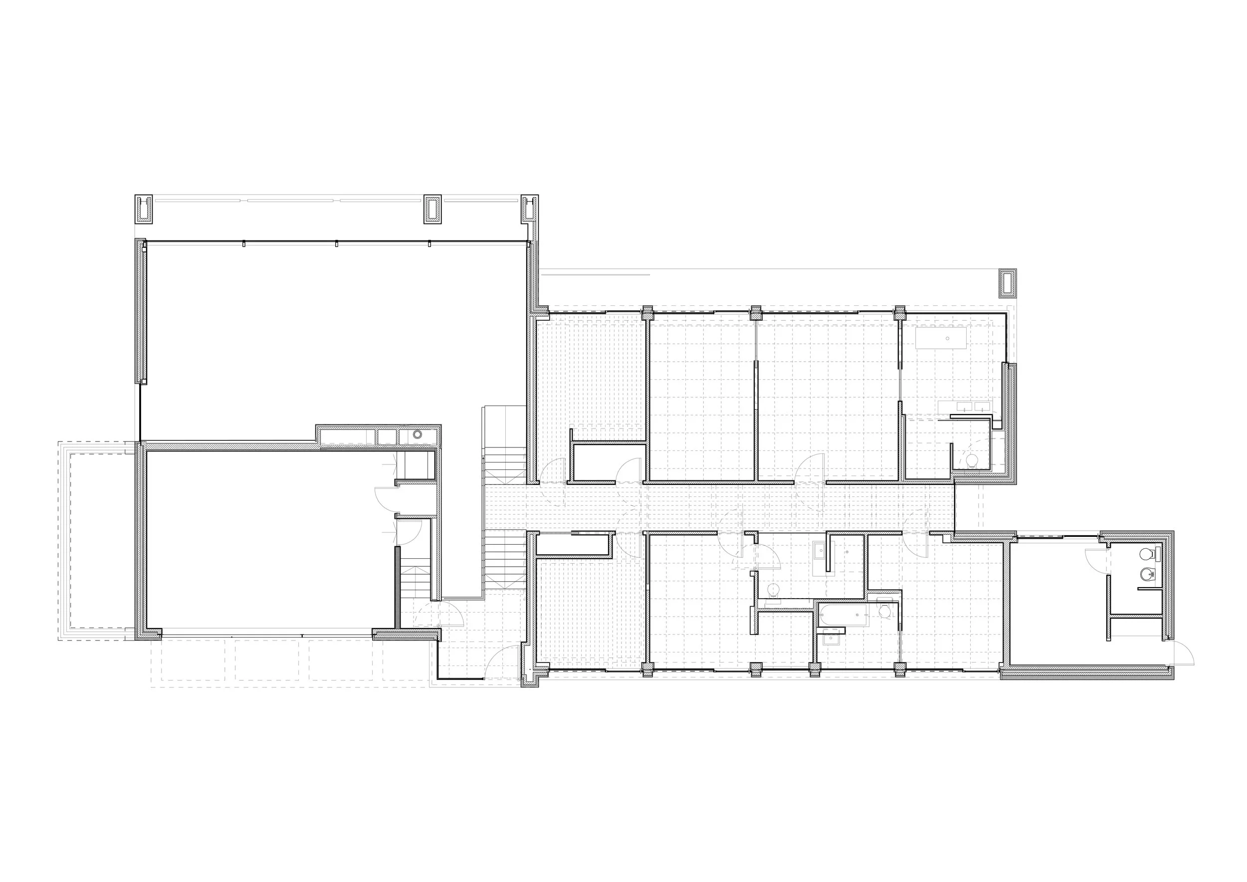
The plan and form of the building responds to the orientation and views from the site, whilst taking advantage of the 8m fall on the site. The building is formed by two blocks, set at different levels, one of which incorporates a double-height living space that has been lowered into the existing gradient of the site, whilst still respecting the existing covenant on the site for a single-storey structure. The entrance into the building is via two bridges, one concrete vehicle bridge into the upper-level garage, or the steel and glass pedestrian bridge onto the mezzanine floor that provides a view through the double-height living space towards a single silver birch tree, and external landscaping beyond.

The main stair descends into the double-height space, with a ‘carpet’ of fumed oak floor, that also leads you down the corridor of the bedroom block, with its suspended pre-cast concrete louvres, and oak floor, that extends into the landscaping through the frameless glass, towards the undergrowth of the surrounding trees. This corridor provides access to all the bedrooms (including en-suites), gym and study via full-height oak doors. The various rooms utilise full height and width glazing, with sliding doors, that provide both views and access into the surrounding landscape.

The double height space of the living space is dominated by the 5m tall, full-width glazing to the south, with its oak louvers at a high level, accompanied by the 8m tall chimney structure that penetrates the roof. The kitchen is adjacent to the living space and provides numerous views through the living space, and back up towards the road.

The client’s requirement for the interior was that it is simple in its appearance, so all the grilles associated with the air conditioning, blinds boxes, glazing frames, door frames, and storage spaces have been designed so that they are not visible, and do not detract from the simple form and clean lines of the building, and its surrounding views.