Houses at Shirecliffe, Sheffield

Sheffield City Council

2008-2010

Stephenson Bell won a competition to design a rare Council-led residential scheme within one of Sheffield’s Housing Market Renewal programme regeneration zones. After two failed attempts to find a developer/architect team, the local council decided to commission its own architects for 16 small plots in the predominantly social housing estate of Shirecliffe, 2.5 miles north of the city centre.

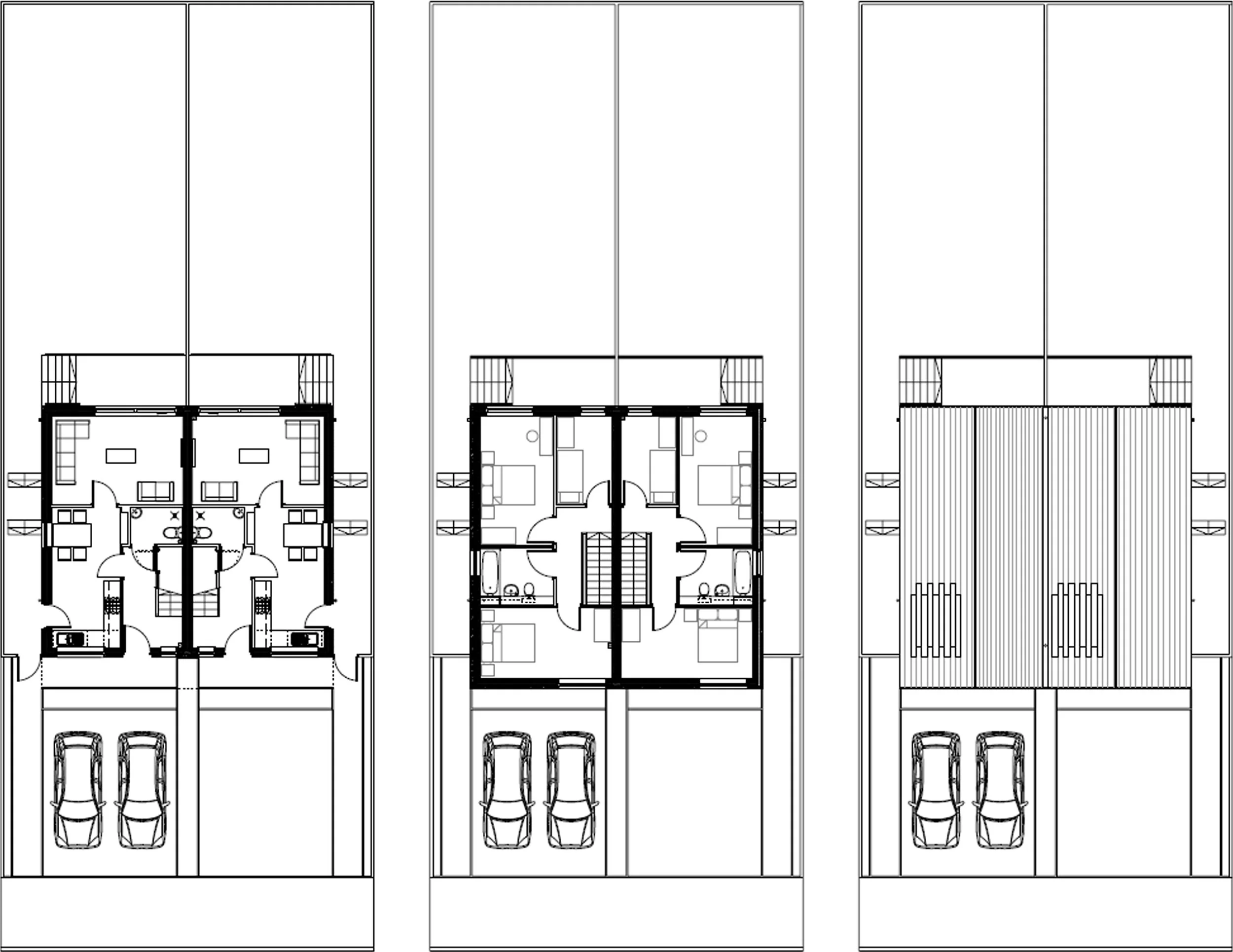
The housing provision was to be the first council house development to be built in Sheffield for over 20 years, ranging from two-bedroom bungalows to four-bedroom family houses. A total of 79 units were to be built on 16 different pockets of land set in 35 hectares of the existing 1940’s estate. The first 27 homes, on four sites, started on site in March 2010 and were completed by the end of the year.

The scheme formed a new strategy for social house building and area renewal. Instead of knocking down and replacing swathes of existing housing, the development seeks to insert strategic pockets of new homes into an existing housing estate. This pepper-potted development can then be the catalyst to kick-start regeneration throughout an existing council estate without ripping the heart out of the community. We believed this approach illustrated how small injections of good quality design can achieve the same goal as widespread demolition at a much reduced cost; both financially and socially.

In order to achieve this objective, the new homes did not just simply blend with their immediate surroundings, they strengthened the local identity. The design language moved away from the traditional ‘council house’ aesthetic.

Whether a bungalow, duplex apartment, 2, 3, or 4 bedroom house, certain architectural features were used throughout, creating a new design language throughout the estate. This philosophy has developed a ‘kit of parts’ based around a limited number of house types. This gives enough repetition of layouts and language to define a new character and create a coherent ‘place’ within the estate, yet retain an element of the site-specific qualities. The designs were recognisably contemporary and different from the existing housing stock yet paradoxically contextual.

As well as conforming to Sheffield Council’s space and mobility standards, the new homes achieved a minimum of level 4 of the Code for Sustainable Homes by working to Lifetime Homes standards, incorporating integral photovoltaic roof tiles, creating a highly insulated/air-tight building envelope and increased acoustic performance. The homes were designed to allow for easy future expansion in response to changes in social and demographic trends.