Smithfield Buildings, Northern Quarter, Manchester City Centre

Urban Splash

1995-1998

Smithfield Buildings occupies a full city block situated on Oldham Street in the ‘Northern Quarter’ of Manchester city centre. It is a group of nine buildings constructed before 1904 and originally used by Messrs Affleck & Brown as a department store; known as the Harrods of the North.

Following the closure of Affleck & Brown, the property became British Home Stores, then Littlewoods; both of which relocated to the Arndale Shopping Centre in the early seventies. Since that time a further series of lower-grade operators have inhabited the building as the location lost its attraction to retailers and shoppers following the opening of the Arndale Centre.

The property is strategically located in the ‘Northern Quarter’ and with the help of grant assistance from English Partnerships, it was hoped that the redevelopment of the site would have a major catalytic impact on the area as a whole and Oldham Street in particular.

Our clients, Urban Splash, acquired the building with the intention of creating residential apartments on the upper floors and a variety of retail spaces on the lower floors.

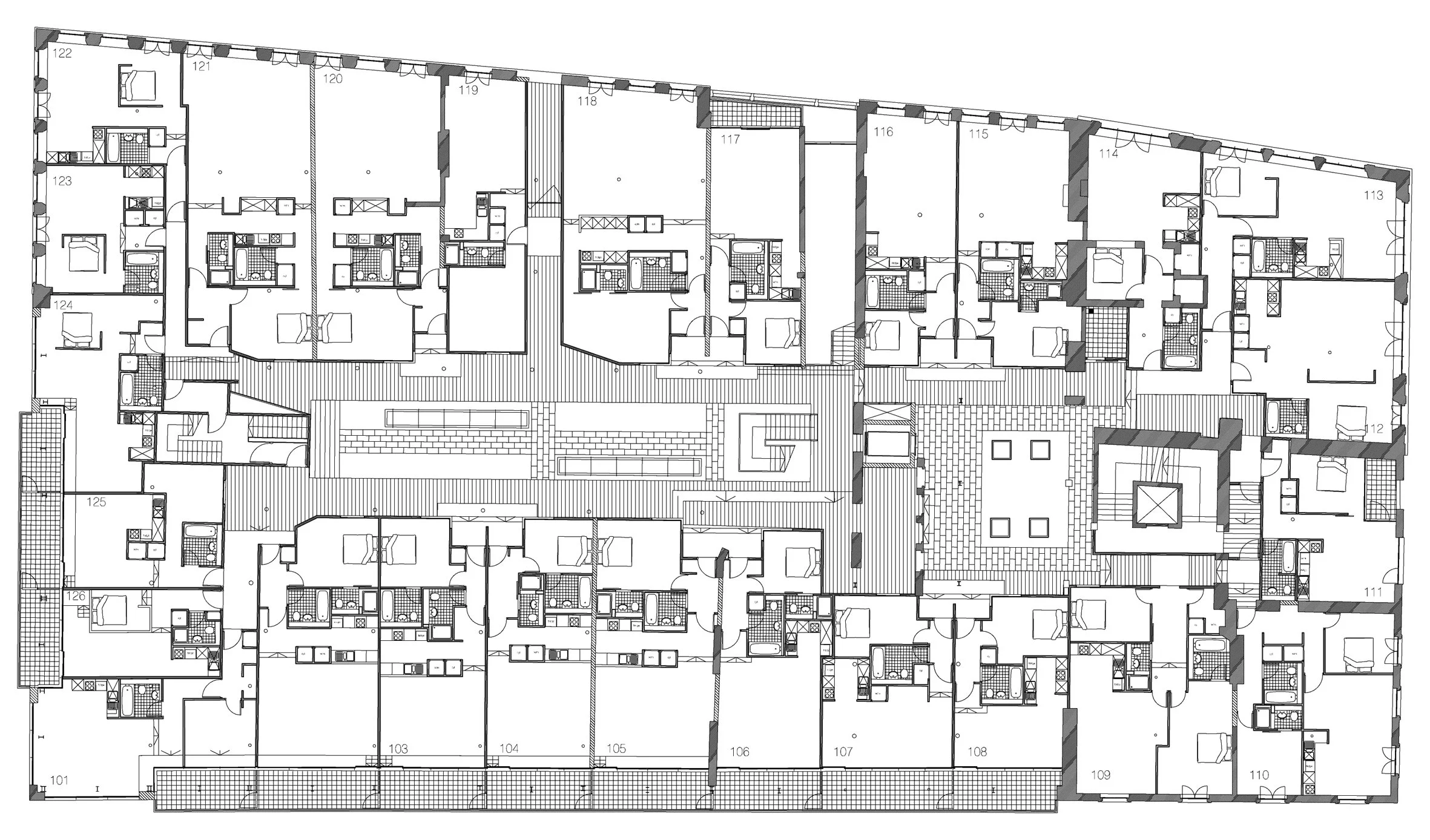
A basic plan form was developed which utilised the existing stairways, conveniently sited to provide the vertical escape provision. The stairways are linked by internal streets on three levels within two lightwells, one of which is based on a remodelled existing arcade retained from the Affleck & Brown days - both the trusses and columns which support the lightwell roof are as originally found. The lightwell functions as a winter (and summer) garden, providing the means by which passive smoke extraction of the common spaces is achieved.

It also creates a habitable room at the rear of the apartment spaces, enabling apartment interiors to be fully exploited and dual aspect in nature. The lightwell also serves as the means by which services are distributed.

An examination of the column grid arrangements within the properties revealed the opportunity for a reasonably optimal configuration of apartments whereby the majority of existing cast iron, pitch pine and masonry elements are retained within spaces as well as new walls inserted, where necessary.

Apartments surround both lightwells and are generally planned to enable living at the front (street side) and sleeping at the rear (lightwell side). Kitchens and bathrooms sit between living and sleeping and on the third floor, bed decks straddle the wet areas, set within the roof trusses over. No two apartments are the same although many have similar attributes. All apartments are split level, having a floor deck raised above the existing floor construction over the rear third of the apartment, enabling services from the main distribution area within the light wells to enter each apartment at low level. This results in a short flight of three steps within each apartment. Single-storey apartments dominate, with bed decks in roof spaces on the third and fourth floors, although two duplex and one triplex apartment have been created.