Stanhope Road, Bowdon, Altrincham

Private Client

2004-2007

 

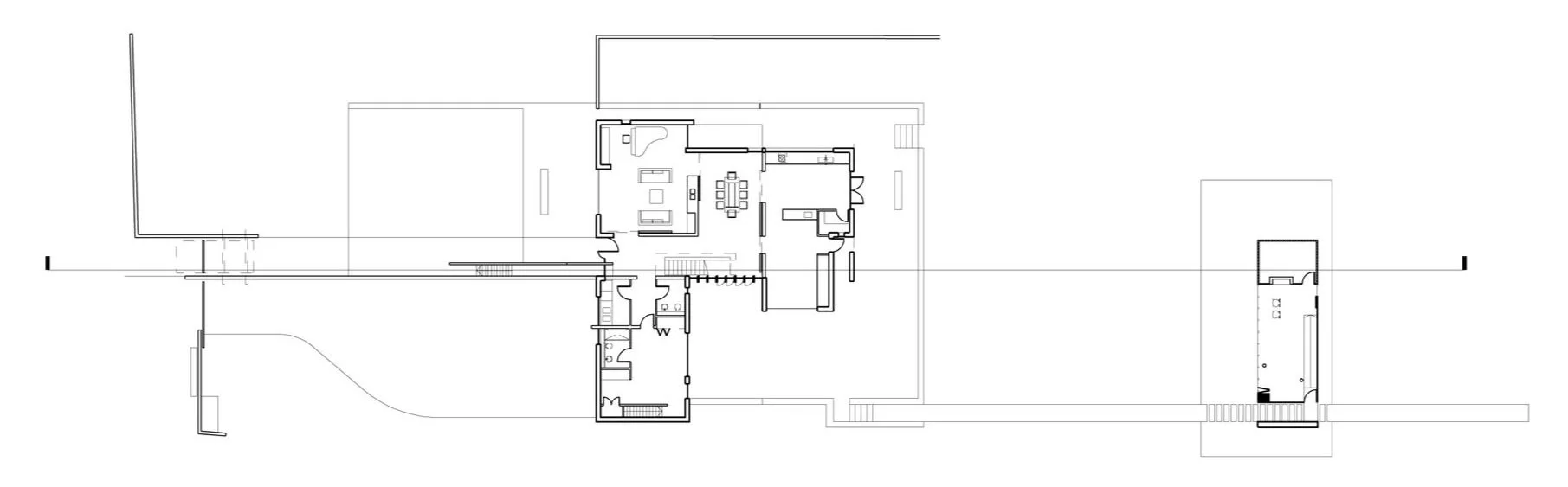
The house has been designed for a young family on a leafy suburban site in Bowdon, southwest of Manchester. It is organised into two bisecting volumes.

The critical issues for the client were privacy and providing a safe and fun environment for their children to grow up in.

Internally, the spaces have been designed so that you meander through the house, with spaces gradually opening up and revealing themselves as you move through it. Large panels can be moved to control movement around the house.

When commencing the design, we first looked at how the garden could relate to the internal spaces. To the front of the house, there was a large south-facing garden, which in the neighbouring properties was poorly utilised due to its visual exposure to the public road. Our starting point therefore was to create extra screening along the site boundary to allow this area to become a usable private family outdoor space. As the outdoor garden space was now private, we were then able to put the living areas on the ground floor, allowing for direct access from inside to out. The privacy of the gardens also allowed us to create large window openings, providing views into the garden without the need for screening, during the day or night. We designed the house in such a way that rooms flow into one another, with each room having its own individual relationship with the outside, creating a dramatic spatial sequence.

In order to divide the vehicle and pedestrian entrance, we ran a concrete wall from the house to the site entrance, dividing the front garden up into pedestrian entrance/garden and driveway. This wall also worked to physically anchor the house into the site and its context.

The actual form of the building is expressed as the meeting of two volumes; the main volume contains the house, whilst the lower stone volume’s wing contains the granny flat and garage. The solid stone block sits aligned with its neighbours whilst the higher rendered block cantilevers over it on the south elevation, creating a dramatic entrance. In a way, the whole design is about the drama of entrance; even as you move through the house the visitor is continuously entering; discovering the drama of each space sequentially.