The Dingle, Hale, Altrincham

Private Client

2008-2009

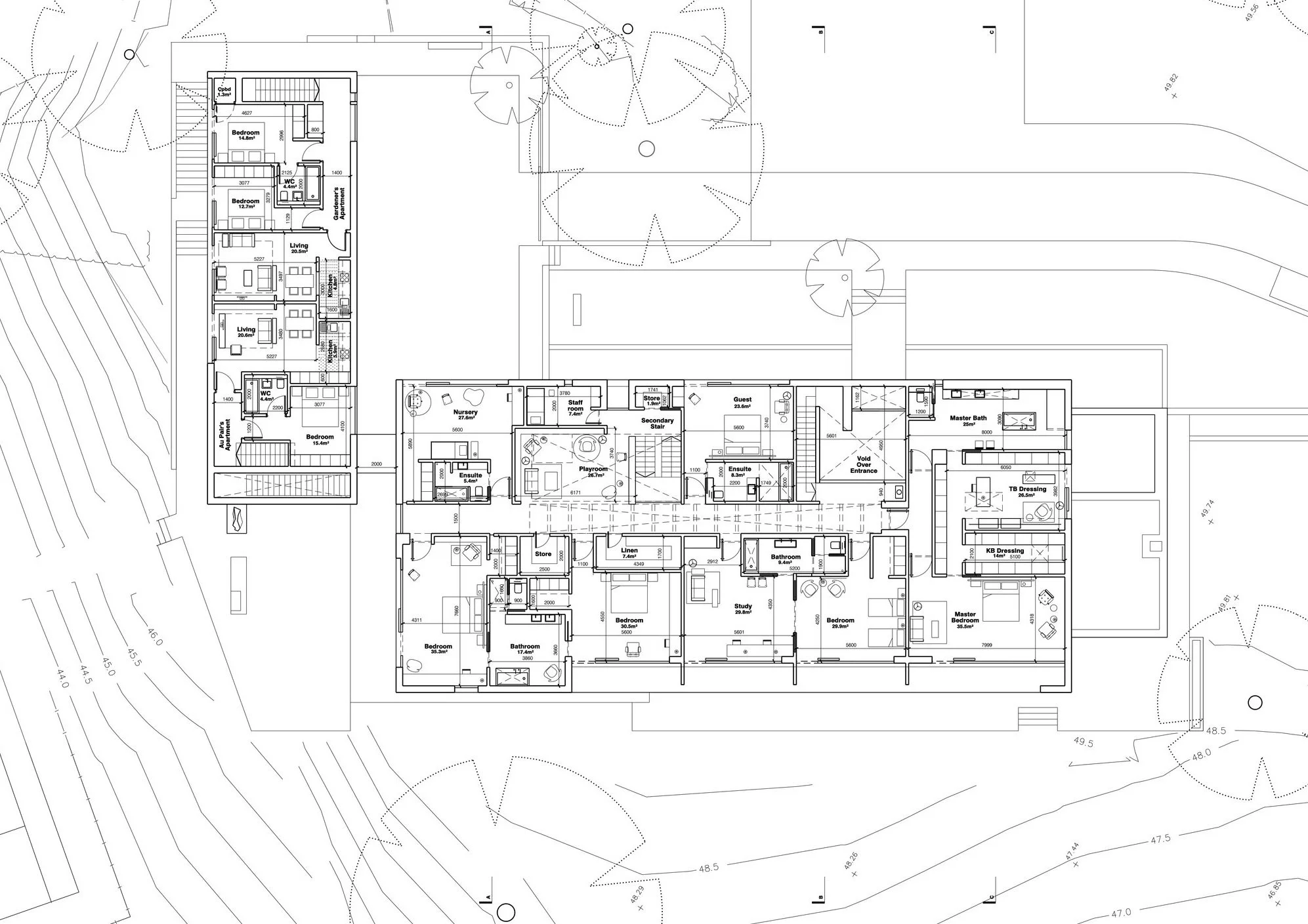
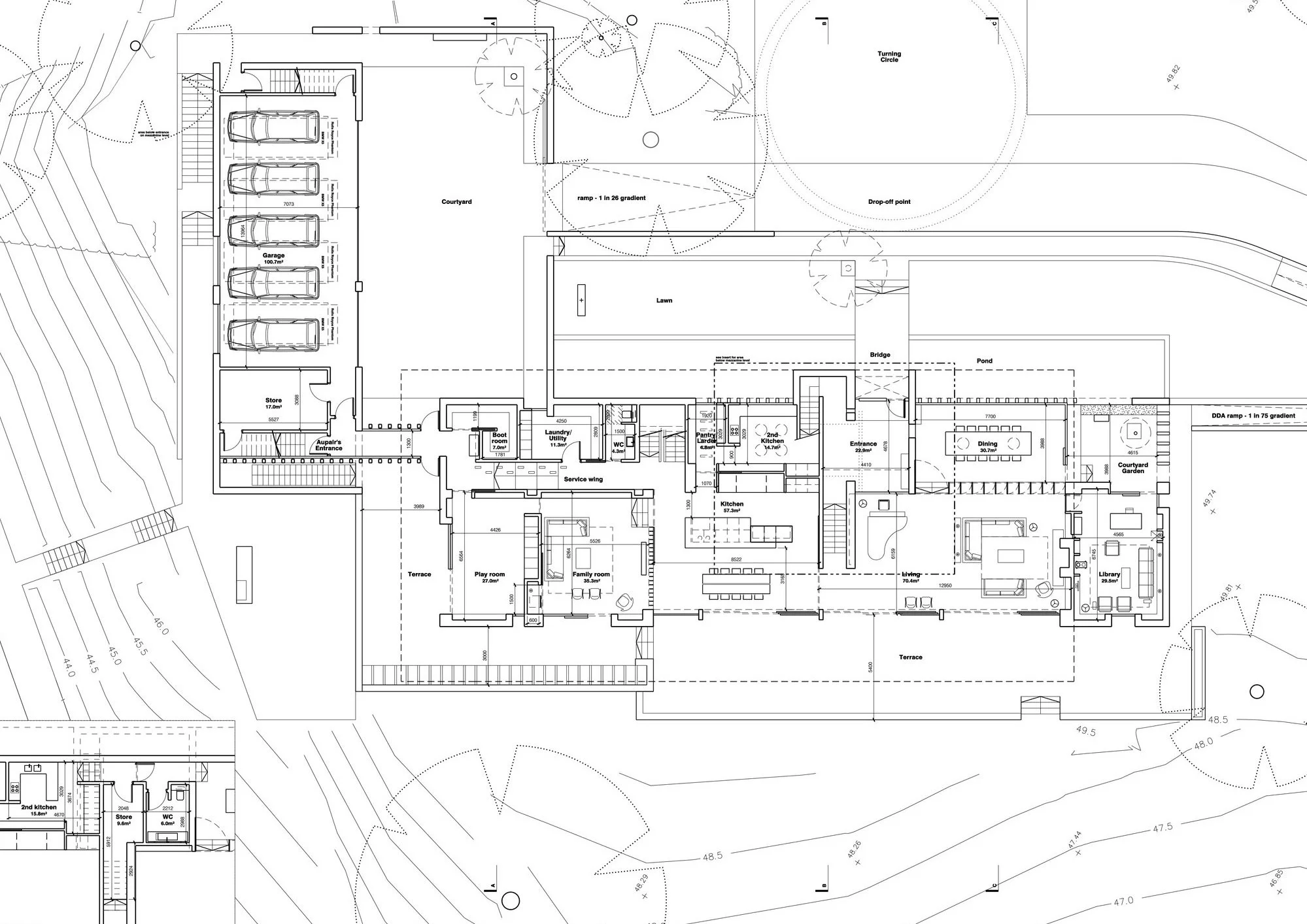
Located within a large picturesque garden in Manchester, the building is organised into two clear volumes, a ‘served’ and a ‘servant’ volume. The main volume is shaped and positioned to maximise the amount of rooms that can interact with the beautiful large rear garden. The ancillary block sits at right angles to this block, helping to enclose the front garden.

We have expressed the building as a series of layers, with its horizontality accentuated, in order to visually anchor it into the site. Materially, the lower living levels are built of textured brick, creating a plinth on which the upper stone sleeping level rests on.