Trafford College, Altrincham

Trafford College

2004-2011

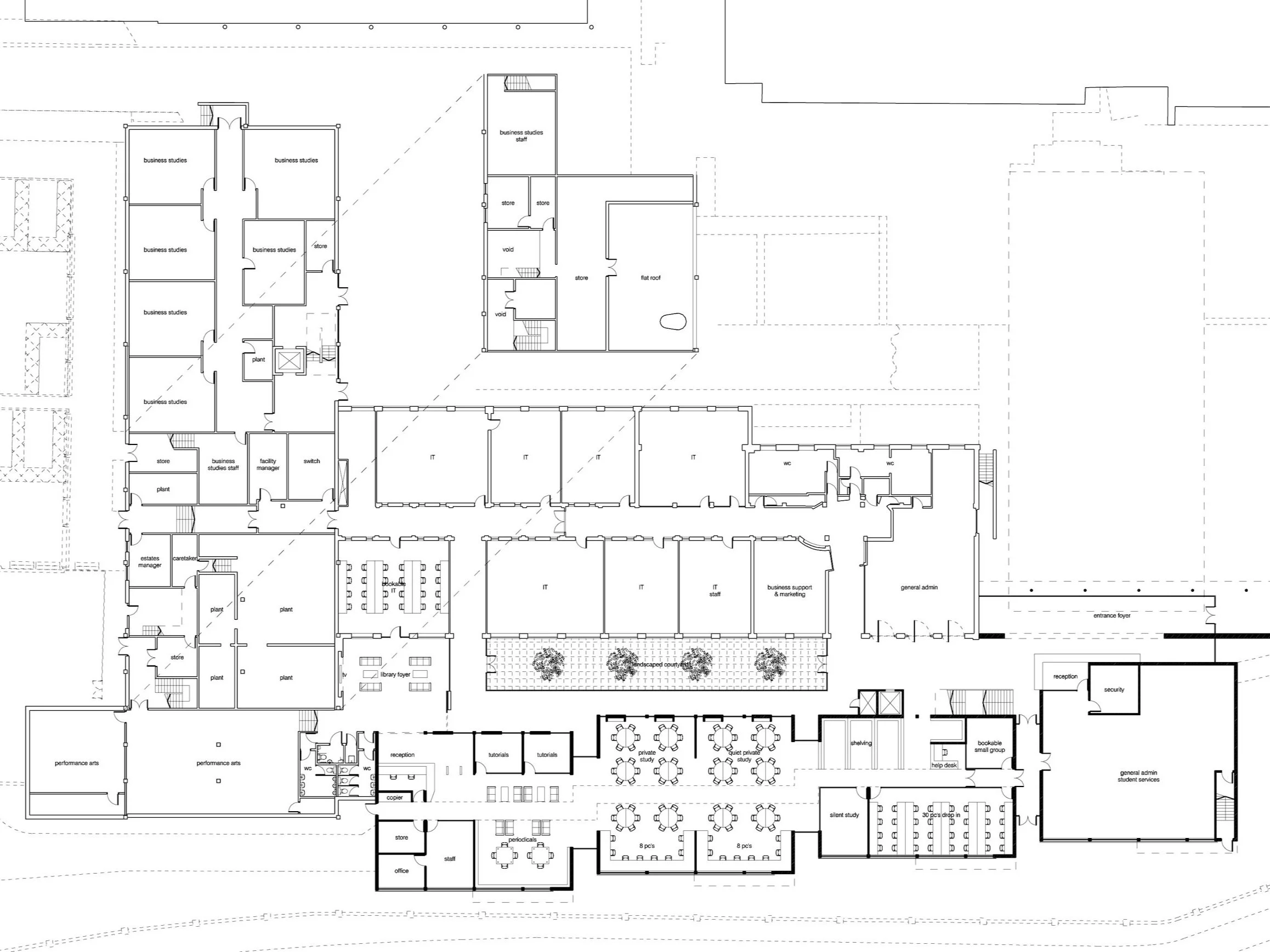
Stephenson Bell were appointed in 2004 to prepare a masterplan to complete the Trafford College Campus. The proposals included the demolition of some existing buildings, to provide sites for a learning resource centre with teaching accommodation over, plus a new 3 storey teaching block comprising two wings of classrooms placed around a centred atrium. The campus will be completed with a high-quality landscaped courtyard.

This £25 million investment in new buildings at the College saw the replacement of the existing library and remaining 1950’s and 60’s teaching accommodation with a phased new build facility totalling 8961m2 of modern sustainable facilities creating a Centre for Young People for the 14-19 age group.

Work commenced in the summer of 2008 to create a specialist A-Level Centre, a new Library and 60 state-of-the-art classrooms. The first phase of which was available to students in September 2009. A new entrance and further classroom accommodation, surrounding a three storey atrium and internal student street, was completed in February 2011. Landscaping of the courtyard followed the final demolition of the remaining older buildings.