Trinity Court, Manchester City Centre

Barlows plc

1989-1993

Trinity Court was built as offices in the mid-19th century. By the late 1980s, it had become a tired, much altered and relatively unsafe structure. It was listed Grade 2 - mainly for the part it played in the street scene - but there was little interest internally. The entrance hall was virtually non-existent; the central lightwell had some character, but offered no fire protection between floors; and the availability of natural light in the lettable space varied greatly.

Our study encompassed improvement of the entrance sequence, the plan, vertical circulation, fire safety, structural stability, loadbearing ability and service provision. Costings were on a par with, if not greater than, the cost of a new building. For commercial reasons, the new building also needed to rise up higher than the old one.

The old facade, of sandstone from ground to first floor, was previously punctuated by shop windows displaying their wares between its columns; although two small shops were to be included in the new development, the office space had to dominate. This was achieved by partly converting the ground-floor stonework into a colonnade, which forms part of the entrance sequence into the office building.

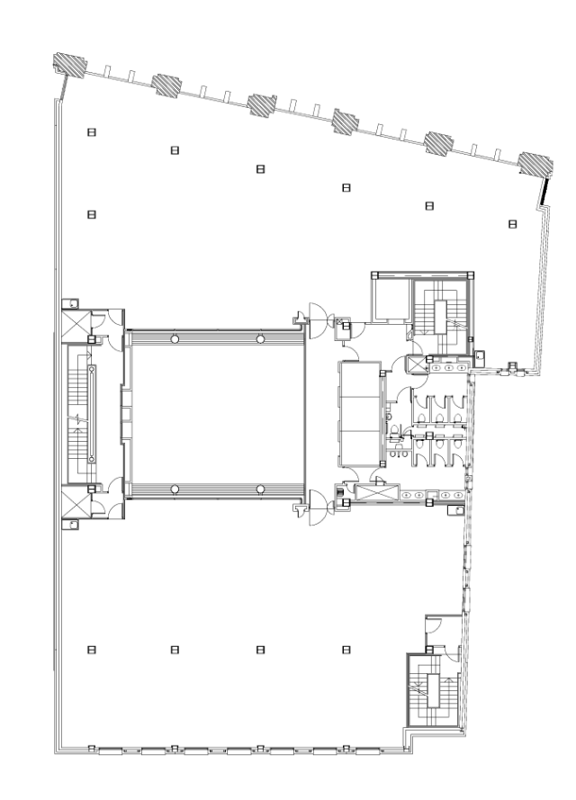
The site is about 24m wide and 37m deep. It was decided early in the design process that accommodation would be provided in the form of two 13m-wide double-banked office buildings, with an atrium in between. We had to provide for as many cars as possible on the site; again, the front-to-back site dimensions neatly provided for split-level parking, with a double bank of cars on each level. Mulberry Street, to the rear is roughly 1.5m lower than John Dalton Street on which Trinity Court is located, allowing the ramping to take place naturally. Where the back of the building is juxtaposed against the Grade 1 listed St. Mary’s church, a corner stair tower articulates the junction; the two buildings are then reunited at the base by a common stone plinth. On this tight backstreet, the ground floor windows, set back in deep, punched-hole openings, and upper-storey detailing acknowledge the need for buildings to have a bottom, a middle and a top.

The old building had reasonably deep basements, with good load-bearing rock only one to two metres beneath the lowest level. The car park continues in five split levels down to the rock.

In plan, the front facade is at an angle of about 12 degrees to the rest of the building. Having juxtaposed the old and the new, we have tried (using geometry and materials) to overlap them. The stone of the facade is allowed into the lowest level of the atrium, but its detailing is clearly new. A contemporary glass and stainless steel canopy emerges through the face on the geometry of the main building. Echoes of the 12° difference occur in the detailed handling of the form.

External materials are red brick, buff sandstone and glass. We have tried to develop a contemporary language for the use of materials that rest happily with and add richness to the urban grain of the city.