Woodstock Drive, Worsley, Salford

Darren Barlow

2006-2008

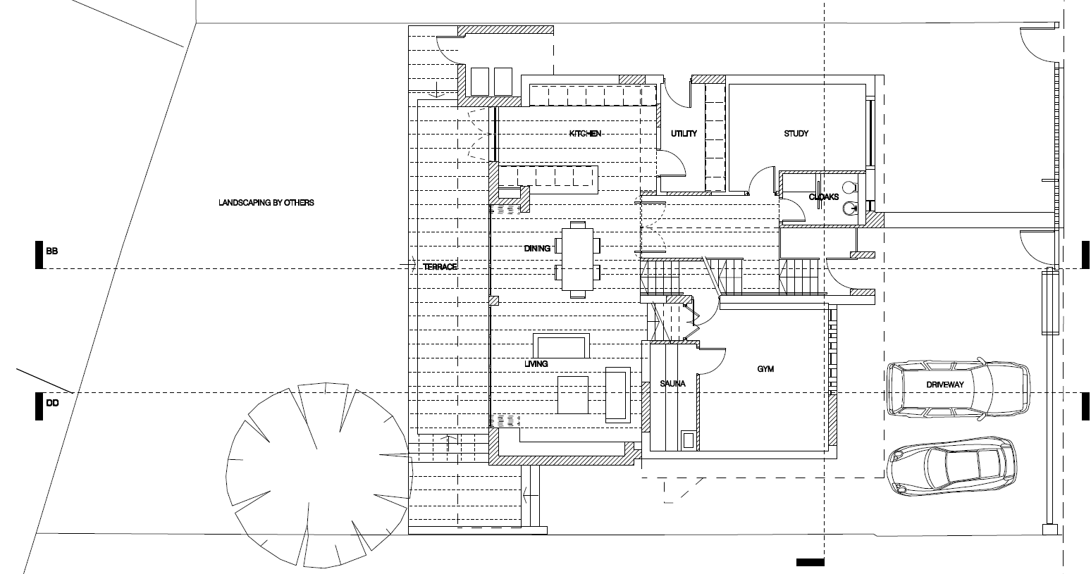
The existing house was an unremarkable 1960’s chalet-style detached property and the client bought it purely for its location close to the centre of Worsley, west Manchester. Although it was of a significant size, the layout was not particularly efficient and did not make the most of the site.

The brief was for a family house providing flexible accommodation generally recognised as being appropriate for a detached house in this location with a particular emphasis on high-quality design and execution. The alterations and additions respond to context and recognise the value of the existing arrangement and its surroundings; the intention was to produce architecture of its time rather than being a pastiche or imitation of what was already there.